百德動態,特種合金百科

10年百德,10年信賴特種合金標準件及制品的研發和生產

服務熱線 : 0515-85516555

不銹鋼螺絲規格 常用螺栓的標準及規格表

本文來源: 百德 責任編輯: 發布日期:2017-11-07

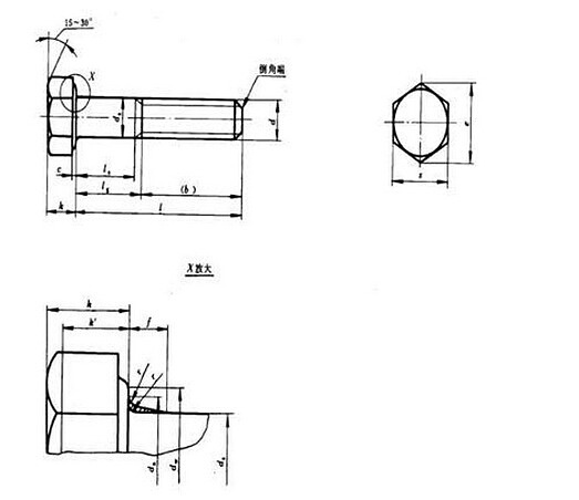
不銹鋼螺絲規格 常用螺栓的標準及規格表 國家標準規定了螺紋規格為M3-M64,A和B級的六角頭螺栓.A級用于D <=24和L<=10D或L<=150mm(按較小值)的螺栓;B級用于D>24或L>10D或L>150(按較小值)的螺栓

不銹鋼螺絲規格 常用螺栓的標準及規格表


      外六角螺栓尺寸規格(如圖) 鋼結構連接用螺栓性能等級分3.6、4.6、4.8、5.6、6.8、8.8、9.8、10.9、12.9等10余個等級,其中8.8級及以上螺栓材質為低碳合金鋼或中碳鋼并經熱處理(淬火、回火),通稱 為高強度螺栓,其余通稱為普通螺栓。螺栓性能等級標號有兩部分數字組成,分別表示螺栓材料的公稱抗拉強度值和屈強比值。例如,性能等級4.6級的螺栓,其含義是: 

1、螺栓材質公稱抗拉強度達400MPa級;

2、螺栓材質的屈強比值為0.6; 

3、螺栓材質的公稱屈服強度達400×0.6=240MPa級性能等級10.9級高強度螺栓,其材料經 過熱處理后,能達到: 1、螺栓材質公稱抗拉強度達1000MPa級; 2、螺栓材質的屈強比值為0.9;

強度等級所謂8.8級和10.9級 

是指螺栓的抗剪切應力等級為8.8GPa和10.9Gpa 8.8公稱抗拉強度800N/MM2公稱屈服強度640N/MM2 一般的螺栓是用"X.Y"表示強度的, X*100=此螺栓的抗拉強度, X*100*(Y/10)=此螺栓的屈服強度 (因為按標識規定:屈服強度/抗拉強度=Y/10) =============== 如4.8級 則此螺栓的 抗拉強度為:400MPa 屈服強度為:400*8/10=320MPa ================= 另:不銹鋼螺栓通常標為A4-70,A2-70的樣子,意義另有解釋 度量 當今世界上長度計量單位主要有兩種,一種為公制,計量單位為米(m)、厘米(cm)、 毫米(mm)等,在歐州、我國及日本等東南亞地區使用較多,另一種為英制,計量單位 主要為英寸(inch),相當于我國舊制的市寸,在美國、英國等歐美國家使用較多。 

1、公制計量:(10進制) 1m=100cm=1000mm 

2、英制計量:(8進制) 1英寸=8英分1英寸=25.4mm3/8¢¢×25.4=9.52 3、1/4¢¢以下的產品用番號來表示其稱呼徑,如: 4#,5#,6#,7#,8#,10#,12# 

 螺紋 

一、螺紋是一種在固體外表面或內表面的截面上,有均勻螺旋線凸起的形狀。根據其結構 特點和用途可分為三大類: 

(一)、普通螺紋:牙形為三角形,用于連接或緊固零件。普通螺紋按螺距分為粗牙和細 牙螺紋兩種,細牙螺紋的連接強度較高。 

(二)、傳動螺紋:牙形有梯形、矩形、鋸形及三角形等。 

(三)、密封螺紋:用于密封連接,主要是管用螺紋、錐螺紋與錐管螺紋。 

二、螺紋配合等級: 螺紋配合是旋合螺紋之間松或緊的大小,配合的等級是作用在內外螺紋上偏差和公差的規 定組合。 

(一)、對統一英制螺紋,外螺紋有三種螺紋等級:1A、2A和3A級,內螺紋有三種等 級: 1B、2B和3B級,全部都是間隙配合。等級數字越高,配合越緊。在英制螺紋中,偏差僅 規定1A和2A級,3A級的偏差為零,而且1A和2A級的等級偏差是相等的。 等級數目越大公差越小。 1、1A和1B級,非常松的公差等級,其適用于內外螺紋的允差配合。 2、2A和2B級,是英制系列機械緊固件規定最通用的螺紋公差等級。 3、3A和3B級,旋合形成最緊的配合,適用于公差緊的緊固件,用于安全性的關鍵設計。 4、對外螺紋來說,1A和2A級有一個配合公差,3A級沒有。1A級公差比2A級公差大 50%,比3A級大75%,對內螺紋來說,2B級公差比2A公差大30%。1B級比2B級大 50%,比3B級大75%。 (二)、公制螺紋,外螺紋有三種螺紋等級:4h、6h和6g,內螺紋有三種螺紋等級: 5H、6H、7H。(日標螺紋精度等級分為I、II、III三級,通常狀況下為II級)在公制螺紋 中,H和h的基本偏差為零。G的基本偏差為正值,e、f和g的基本偏差為負值。如圖所 示: 1、H是內螺紋常用的公差帶位置,一般不用作表面鍍層,或用極薄的磷化層。G位置基 本偏差用于特殊場合,如較厚的鍍層,一般很少用。 2、g常用來鍍6-9um的薄鍍層,如產品圖紙要求是6h的螺栓,其鍍前螺紋采用6g的公差 帶。 3、螺紋配合最好組合成H/g、H/h或G/h,對于螺栓、螺母等精制緊固件螺紋,標準推薦 采用6H/6g的配合 

(三)、螺紋標記 四、自攻、自鉆螺紋的主要幾何參數: 

(一)、大徑/牙外徑(d1),為螺紋牙頂重合的假想圓柱直徑。螺紋大徑基本代表螺紋尺 寸的公 稱直徑。 

(二)、小徑/牙底徑(d2):為螺紋牙底重合的假想圓柱直徑。 

(三)、牙距(p):為相鄰牙在中經線上對應兩點的軸向距離。在英制中以每一英寸 (25.4 mm)內的牙數來表明牙距。 下表列舉常用規格的牙距(公制)牙數(英制) 1、公制自攻牙: 規格ST1.5ST 1.9ST 2.2ST 2.6ST 2.9ST 3.3ST 3.5ST 3.9ST 4.2ST 4.8ST 5.5ST 6.3ST 8.0ST 9.5 牙距0.50.60.80.91.11.31.31.31.41.61.81.82.12.1 2、英制自攻牙: 規格4#5#6#7#8#10#12#14# 牙數 AB牙2420201918161414 A牙2420181615121110 

材料 

一、目前市場上標準件主要有碳鋼、不銹鋼、銅三種材料。 

(一)碳鋼。我們以碳鋼料中碳的含量區分低碳鋼,中碳鋼和高碳鋼以及合金鋼。 

 1、低碳鋼C%≤0.25%國內通常稱為A3鋼。國外基本稱為1008,1015,1018,1022等。主 要用于4.8級螺栓及4級螺母、小螺絲等無硬度要求的產品。(注:鉆尾釘主要用1022材 料。) 

2、中碳鋼0.25% 0.45%。目前市場上基本沒使用 

4、合金鋼:在普碳鋼中加入合金元素,增加鋼材的一些特殊性能:如35、40鉻鉬、 SCM435,10B38。芳生螺絲主要使用SCM435鉻鉬合金鋼,主要成分有C、Si、Mn、P、 S、Cr、Mo。 

(二)不銹鋼。性能等級:45,50,60,70,80 主要分奧氏體(18%Cr、8%Ni)耐熱性好,耐腐蝕性好,可焊性好。A1,A2,A4 馬氏體、13%Cr耐腐蝕性較差,強度高,耐磨性好。C1,C2,C4鐵素體不銹鋼。18%Cr 鐓鍛性較好,耐腐蝕性強于馬氏體。目前市場上進口材料主要是日本產品。按級別主要分 SUS302、SUS304、SUS316。 

(三)銅。常用材料為黃銅…鋅銅合金。市場上主要用H62、H65、H68銅做標準件。 碳鋼產品所使用的盤元: 序號種類可選用的材質 14.8級六角螺栓1008K10101015K 26.8級六角螺栓103210351040CH38F1039 38.8級六角螺栓1035ACR(M10以下)1040ACR(M12以上)CH38F1045ACR103910B21 10B3310B38 48.8級內六角螺栓CH38F103910B21(M10-M12)10B33(M14)10B38(M12-M24) 10B21 510.9級六角螺栓1045ACR10B38 6│8│級螺帽1008K1010 78級螺帽1015(M <16)CH38F(M≥16) 810級螺帽CH38F103910B2110B33 912級螺帽103910B2110B3310B38 10馬車螺絲100810101015 11六角緣凸螺栓CH38F103910B2110B3310B38 12六角木螺絲1008K1010 13自攻釘、墻板釘 鉆尾釘、夾板釘10181022CH22A 14機螺釘家俱螺絲10081010 

三、材料中各類元素對鋼的性質的影響: 

1、碳(C):提高鋼件強度,尤其是其熱處理性能,但隨著含碳量的增加,塑性和韌性下 降,并會影響到鋼件的冷鐓性能及焊接性能。 

2、錳(Mn):提高鋼件強度,并在一定程度上提高可淬性。即在淬火時增加了淬硬滲入 的強度,錳還能改進表面質量,但是太多的錳對延展性和可焊性不利。并會影響電鍍時鍍 層的控制。 

3、鎳(Ni):提高鋼件強度,改善低溫下的韌性,提高耐大氣腐蝕能力,并可保證穩定的 熱處理效果,減小氫脆的作用。 

4、鉻(Cr):能提高可淬性,改善耐磨性,提高耐腐蝕能力,并有利于高溫下保持強度。 

5、鉬(Mo):能幫助控制可淬性,降低鋼對回火脆性的敏感性,對提高高溫下的抗拉強 度有很大影響。 

6、硼(B):能提高可淬性,并且有助于使低碳鋼對熱處理產生預期的反應。 

7、礬(V):細化奧氏體晶粒,改善韌性。 

8、硅(Si):保證鋼件的強度,適當的含量可以改善鋼件塑性和韌性。 

四、關于不銹鋼材質之特性簡介(304、316) 

(一)該三種材質均為300系列的奧氏體不銹鋼,其化學成分如下: 名稱CSiMnPSNiCrMoCu 304M≤0.06≤1.0≤2.0≤0.045≤0.038.91-10.018.0-20.000 316≤0.03-0.06≤1.0≤2.0≤0.045≤0.0310.0-14.016.0-18.02.0-3.00 304HC≤0.08≤1.0≤2.0≤0.045≤0.038.0-10.517.0-19.001.0-3.0 

(二)主要化學成分與不銹鋼性能之關系。 

1、碳C可增加硬度和強度,含量過高會降低其延展性和耐蝕性 

2、鉻Cr可增加耐蝕性、抗氧化性,使品粒細化,增加強度,硬度和耐磨性 

 3、鎳Ni可增加高溫強度、耐蝕性,降低冷加工硬化之速率 

4、鉬Mo增加強度,對氧化物和海水的耐蝕性優良 

5、銅Cu利于冷加工成型,降低磁性 

(三)材質之其它性能 1、以上材質正常狀態無磁性。304M冷加工后略有磁性(1.6u-2.0u左右);304HC磁性為 (1.01u-1.6u左右);316材質冷加工后磁性小于1.01u。 2、各材質均有良好的延展性,易冷加工成型,抗拉強度、屈服強度、均可達到要求。(Ts 抗拉強度min700N/mm,Ys屈服強度min450N/mm) 

(四)結論 

 1、304M、304HC、316三種材質是目前300系列奧氏體不銹鋼使用最廣的材質之一。各材 質明顯差異為:冷加工后材質磁性為316<304HC<304M。316材質抗化學品腐蝕,抗孔蝕 性及抗海水耐蝕性能相對于304M及304HC要優良。 

2、總之,不銹鋼標準件特性為耐腐蝕、美觀、衛生,但其強度、硬度正常情況下相當于碳 鋼(6.8級)故對不銹鋼產品應不可撞擊、敲打、注意維護其表面光潔度、精度,且不能和 使用碳鋼產品一樣隨便施加力量,亦不可施力過大,同時因不銹鋼延展性好,在使用時產 生鋼屑易粘于螺帽牙級處,增加摩檫力,易導致鎖死,而使用碳鋼即使產生鐵屑也會掉 落,相對于不銹鋼不易鎖死。 

產品大類 

(一)、六角螺栓(HEXAGONHEADBOLTS) 

1、英制螺栓參照標準為ANSI/ASMEB18.2.1,日標參照JISB1180(韋氏牙)。英制參照 BSW916(韋氏牙)。 

(1)、HEXMACHINEBOLT:無華司、有束尾、半牙六角螺栓, 

(2)、HEXTAPBOLT:無華司、無束尾、全牙六角螺栓, 

(3)、HEXCAPSCREWS:有華司、有束尾、半牙六角螺栓, 

 2、公制螺栓參照標準如下,其相互區別如表所示: 老國標新國標ISO標準DIN(德標) GB30 GB5780(半牙) GB5781(全牙) GB5782(半牙) GB5783(全牙)ISO4016 ISO4018 ISO4014 ISO4017DIN601 DIN558 DIN931 DIN933 

(二)、馬車螺絲/圓頭方頸螺栓(CarriageBolts): ANSI/ASMEB18.5;DIN603;ISO8677;GB12;GB14 

(三)、內六角螺栓(Hexagonsocket-headcapscrews): DIN912;GB70;ISO4762;ANSI/ASMEB18.3 

(四)、六角木螺絲(HexagonHeadLagScrews): ANSI/ASMEB18.2.1DIN571 

(五)、家俱螺絲(Furniturescrews):依客戶標準 

(六)、六角法蘭螺栓(HexagonFlangeBolt): IFI111GB5787DIN92 

三、標志、性能等級 (1)、標志。六角頭螺栓和螺釘(螺紋直徑≥5mm)。

需在頭部頂面用凸字或凹字標志, 或在頭部側面用凹字標志。包括性能等級、廠標。碳鋼:強度等級標記代號由“?”隔開的兩 部分數字組成。標記代號中“?”前數字部分的含義表示公稱抗拉強度,如4.8級的“4”表示公 稱抗拉強度400N/MM2的1/100。標記代號中“?”和點后數字部分的含義表示屈強比,即公 稱屈服點或公稱屈服強度與公稱抗拉強度之比。如4.8級產品的屈服點為320N/mm2。不 銹鋼產品強度等級標志由“—”隔開的兩部分組成。標志代號中“—”前符號表示材料。如: A2,A4等標志“—”后表示強度,如:A2-70 (2)、等級。碳鋼:公制螺栓機械性能等級可分為:3.6、4.6、4.8、5.6、5.8、6.8、8.8、 9.8、 10.9、12.9共10個性能等級。不銹鋼分為60,70,80(奧氏體);50,70,80,110(馬氏體);45,60 (鐵氏體)三類。

相關文章

熱門推薦

聯系百德

0515-85516555

江蘇百德特種合金有限公司 備案號:蘇ICP備16051908號   百度統計 電話:0515-85516555手機:13914430999 公司地址:江蘇省東臺市時堰鎮南工業區

百德手機網站

特種合金緊固件 特種合金材料 合金牌號 合作案例 自動化設備 百德資訊 關于百德 聯系百德 網站地圖